巢湖英和4层2000平方办公楼装修
项目类型:办公室
项目面积:1800㎡
所在地:巢湖
主要材料:古堡灰大理石、玻化砖、木饰面等
设计说明:
本项目位于安徽巢湖经济开发区花山工业园内,位置优越,交通便利,
主要生产电力电子器件、电力电容器、储能电容器、高低压开关电器、高低压成套设备、电力无功补偿设备、智能监测设备、电能质量设备、通讯设备、电力自动化设备以及相关软件的研发、设计、系统集成、生产、销售及技术服务结合建筑的既有特性和产品特征,设计师以新锐的时尚艺术平衡其中,用理性的思维,诗意的表达。
旨在为业主打造出一个充满现代感而又不失时尚格调、追求极致的现代办公展示空间。

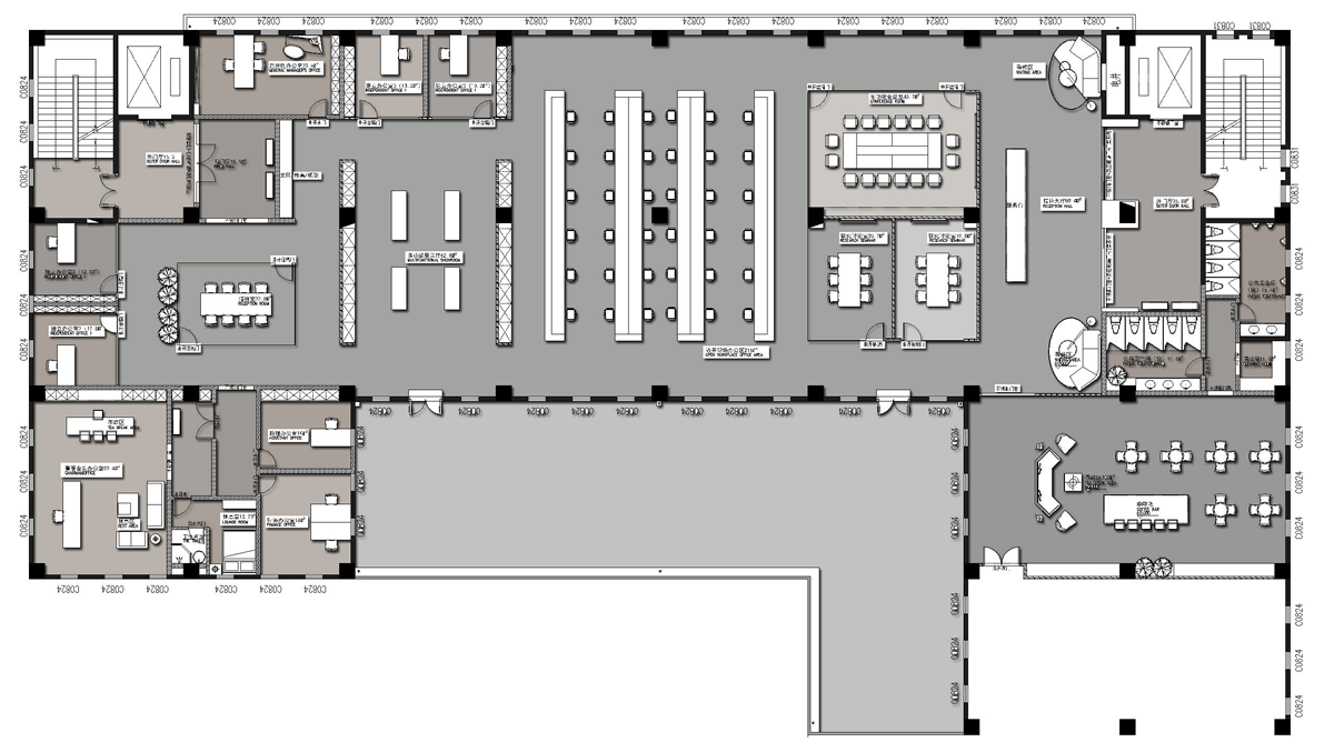
平面布置图

接待厅服务台角度效果
走进空间,驻足于接待区域前,***眼映入眼帘的便是那现代和中式结合的形象背景墙,上半部以石材石片做层峦叠嶂的山峰,下部用实木木方勾勒出水中上部山的倒影景像,新中式与现代完美配合,上下两组形状,一深一浅,天地呼应,互为依托,***禅意。

开放员工办公区角度效果
员工办公区域采用开放敞开式,最大化利用了空间和光线,顶面搭配工业风的吊灯,地面浅灰色地毯,让空间充满时尚舒适的氛围

接待室角度效果
玻璃是人类一项伟大的发明,接待室在本案中作为共享式的空间,正运用了四面玻璃作为隔断形式,获得更通透的视野,同时也借助了更多的自然光。

茶水间接待区角度效果
茶水间接待区简洁大方,家具运用了不对称围合布置,采用亮蓝色茶水柜作为空间点缀色,加强空间节奏感,使得空间更为层次分明的同时,也烘托出柔和的舒适氛围,给人以放松安静的感觉。

总经理办公室

董事长办公室角度效果
墙面运用硅澡泥突出肌理,配以家具木饰面,皮质,金属细腻的质感,凸显办公室档次和舒适性,空间色调柔和时尚彰显业主品味。
13095516878


