合肥长江180步阳门200平方展厅装修
项目类型:展厅
项目设计:设计D组
项目面积:200㎡
所在地:合肥市
设计说明:
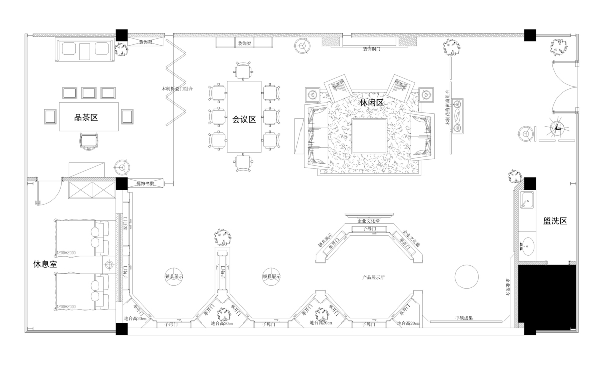
该方案原址为一个废弃厂房,现规划成了商业街,厂房经设计充分利用,成为一个门窗公司的展厅。
该方案采用工业风,工业风最初表达的理念就是桀骜不驯,与世俗格格不入的自由不羁,而最原始、最单纯、最简洁的黑白灰三色,在视觉上就带给人简约又神秘的感受,让风格展现变得更加立体。






辰豪装饰:民宿 · 别墅 · 售楼部-全案整装引导者
13095516878
合肥长江180步阳门200平方展厅装修
项目类型:展厅
项目设计:设计D组
项目面积:200㎡
所在地:合肥市
设计说明:
该方案原址为一个废弃厂房,现规划成了商业街,厂房经设计充分利用,成为一个门窗公司的展厅。
该方案采用工业风,工业风最初表达的理念就是桀骜不驯,与世俗格格不入的自由不羁,而最原始、最单纯、最简洁的黑白灰三色,在视觉上就带给人简约又神秘的感受,让风格展现变得更加立体。






2023
2023
2023
2023
2023
在线预约
量房预案
方案臻选
签订合同
金牌施工
竣工验收
享受保障