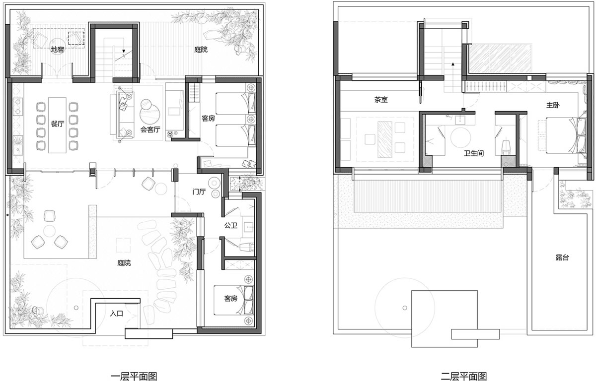
徽派民宿的魅力
民宿是指利用自用住宅空闲房间,结合当地人文、自然景观、生态、环境资源及侬给你说是渔牧生产活动,以家庭副业方式经营,提供旅客乡野生活之住宿处所。体会乡间田野,返璞归真的农林气息。




仿古的庭院里,保留了原来的老树,屋里没有一件老旧物件,从卧床到桌椅都是国外设计生产的品牌家居。住在这里的住客大多喜欢这种“大隐于市、小隐于野”的感觉。







辰豪装饰:民宿 · 别墅 · 售楼部-全案整装引导者
13095516878
民宿知识百科
徽派民宿的魅力
民宿是指利用自用住宅空闲房间,结合当地人文、自然景观、生态、环境资源及侬给你说是渔牧生产活动,以家庭副业方式经营,提供旅客乡野生活之住宿处所。体会乡间田野,返璞归真的农林气息。




仿古的庭院里,保留了原来的老树,屋里没有一件老旧物件,从卧床到桌椅都是国外设计生产的品牌家居。住在这里的住客大多喜欢这种“大隐于市、小隐于野”的感觉。







2023
2023
2023
2023
2023
2023
在线预约
量房预案
方案臻选
签订合同
专业施工
竣工验收
享受保障
专业民宿、售楼部、办公楼装修设计施工
咨询电话 丨 13095516878