巢湖厵村精品度假酒店CG02客房装修案例
项目类型:民宿
项目设计:设计B组
项目面积:1200㎡
所在地:巢湖市黄麓镇
主要材料:白麻大理石、无纺布墙布、实木复合多层地板
设计说明:
流水潺湲,峰林秀美,花海绵延无尽的阳朔就如同一幅虚实难分的写意山水,给人以无限的遐想与眷恋。陈砖瓦砾、石板长街,是岁月的馈赠,千年古桥之下遇龙河湍流而过。酒店的整体设计结合了历史与文化元素,寄情于景,返璞归真。
酒店共有三十间客房,根据不同的朝向景观和面积进行合理的划分。设计师提取出具有代表性的地域色彩应用在客房区域,创造不同的情境体验,使空间更具自然的灵动与生机。大面积的窗户将自然景观引入室内,临窗而立,将景致尽收眼底。客房沿用简洁、雅致的设计笔触,让当代的设计理念,结合有拙性的物件,形成视觉上的碰撞与冲突,以情寄物,以物传情,赋予空间灵魂。客房采用了智能化系统,配合温馨的氛围照明,意境之余,更多的是舒适。

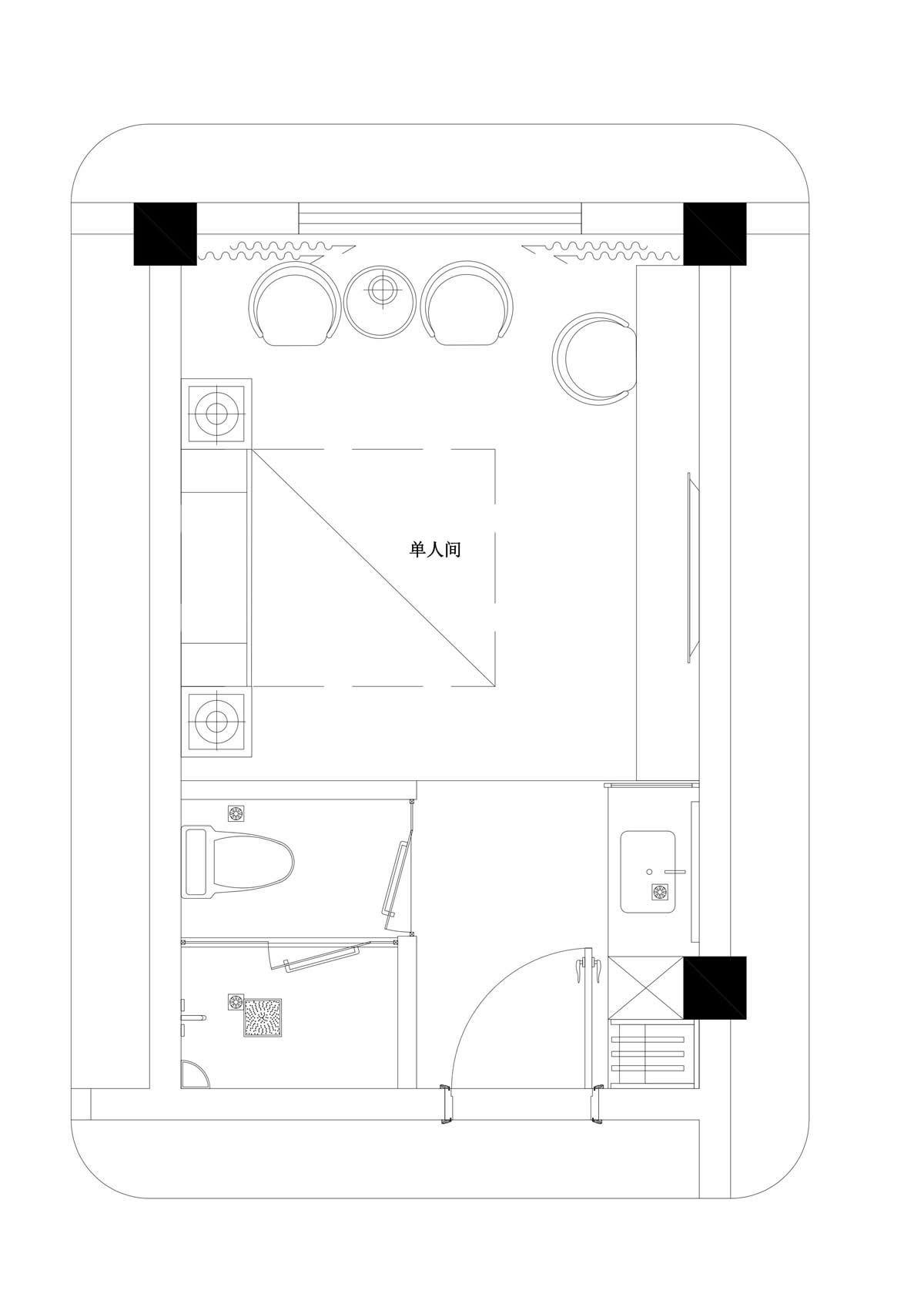
单人间客房平面图

客房单人间效果图
双层石膏板吊顶,糯米胶满贴墙布,搭配原木色的家具,清新自然的风格表现的淋漓尽致。

客房单人间客房效果图

客房单人间客房效果图
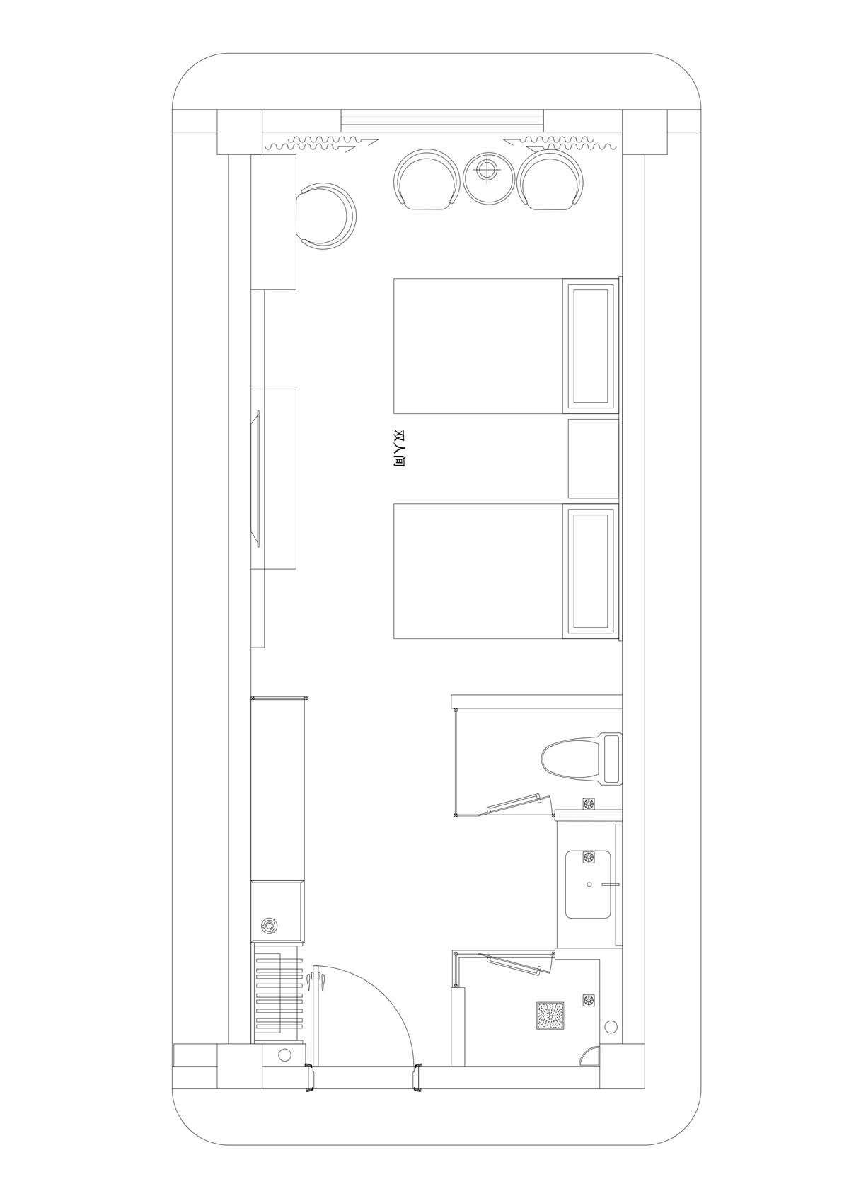
客房双人间平面图

客房双人间效果图

客房双人间效果图
13095516878









