提到新中式风格空间设计,大家的***印象,便是和谐包容,传统与现代交融碰撞出设计的灵感火花,给我们带来诗意空间体验,在新中式的诗意从容中,裹挟着一丝金石之气,给大家带来了耳目一新的感受。

项目以中式宅院的传统元素,营造自然雅致的梦想栖息之地,以现代主义与东方古典想结合绘制自然融合的唯美盛景,打造诗意从容的日常优雅生活。

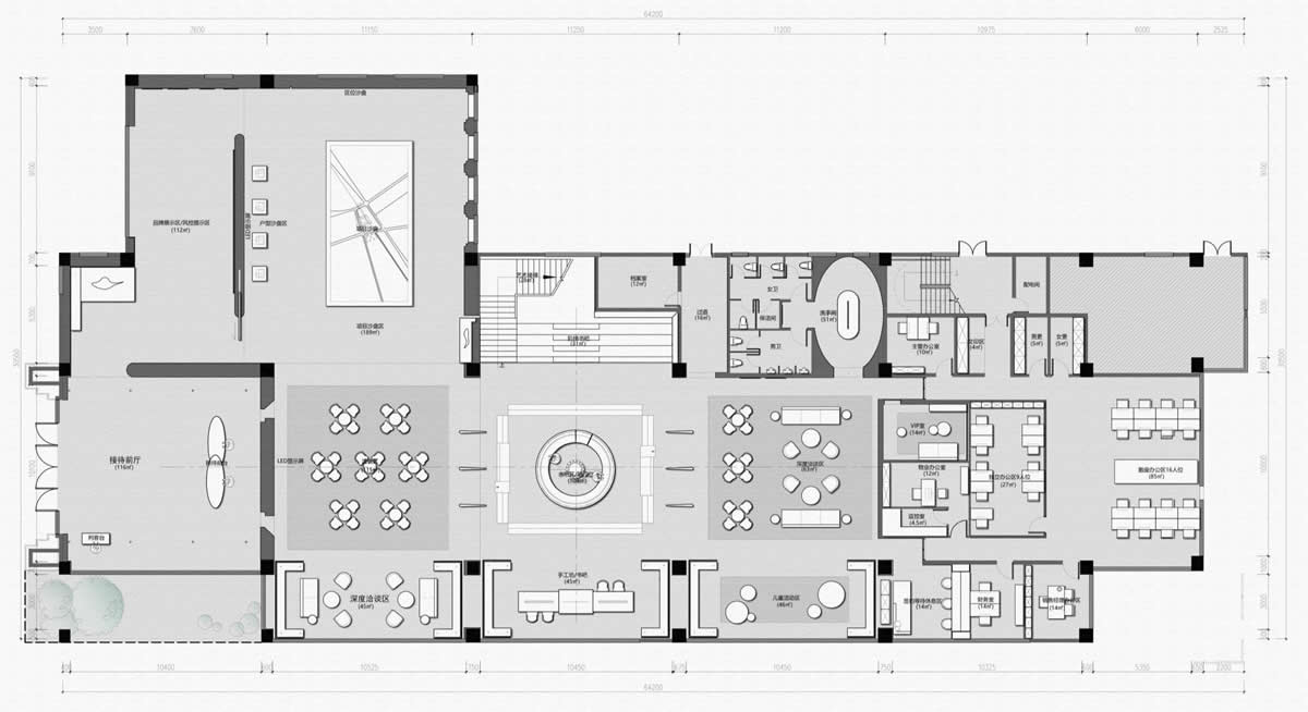
本案采用实木做主材,在灯具上融入金属及水晶元素提升空间质感,将传统的元素运用现代的手法进行演绎,以中式元素的饰品、花架来提升典雅的品味,让山水、诗赋、书画等有襄阳风骨的事物流入空间,完成寄情。整个营销中心将传统文化完美地融合进现代生活,造就空间的内涵、端正与宏伟。

如何将该区域的主角——沙盘,以最完美的形态呈现。整个区域除了从入门处的穿堂光线,犹如山峦层层叠叠的水晶沙盘吊灯也对室内光线进行了补充。沙盘大灯在镜面内与镜面外形成呼应,空间从视觉上得以扩大。

企业文化区抛弃了冗杂繁复的装饰,藤编吊顶嵌入现代镜面造型灯,犹如一束姿态优雅的迎客红松渲染出古典雅致的氛围。

沙盘区与洽谈区两区相互开放,功能泾渭分明。呼应空间的整体气质,设计师选择了简约座椅,一抹鲜艳的红色绽放在桌上,打破了石材的清冷质感,古朴与热烈两种不同的气质在此处交汇流淌。顶灯犹如绵长蜿蜒的汉水,流动的灯光宛如游鱼给洽谈区带来了生动的气息。



以匠艺精工深究帷幄于时代的建筑艺术打造新;以美好致敬人居岁月归家即是幸福!

13095516878






