现代简约代表了现代年轻人的生活态度,身处于紧张,匆忙的时代,在回家后有属于自己的一番天地,可以放松的享受。

宽敞的客厅,让生活更简单一些。

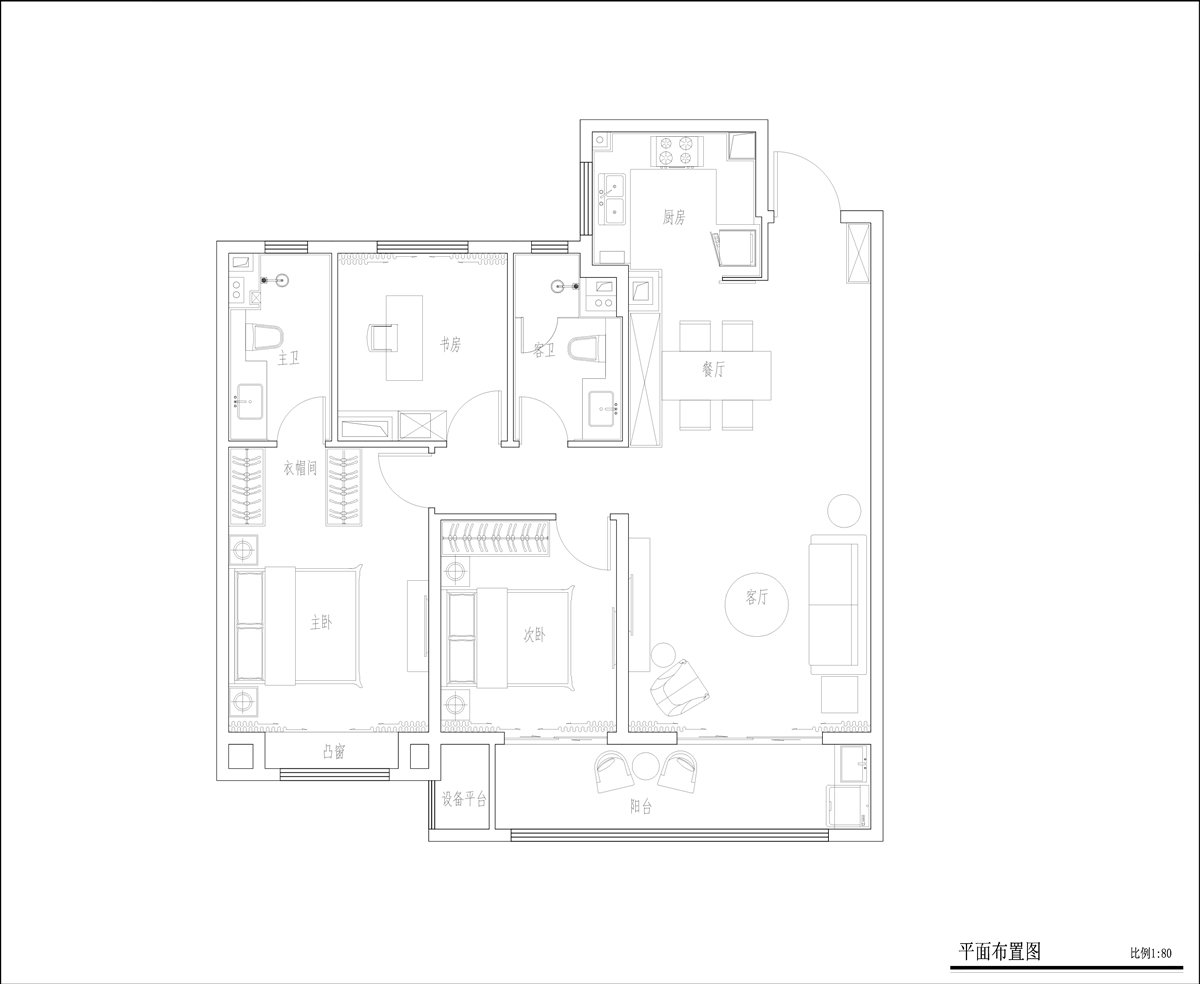
餐厅靠墙的餐桌,平时一家人围坐在一起,其乐融融,也增加了餐厅区域的活动空间。偶尔有朋友的时候也可以很从容地接待。

整洁明亮的厨房,各种小家电被安置得井井有条,在下班后可以给爱的人做一顿热腾腾的饭菜。门口是透明的玻璃门,在沙发上也可以看到爱的人在里面为自己忙碌。

主卧以简洁为主,放置着一张大的双人床,窗帘和床单陪衬,软装到位。由于线条简单、装饰元素少,增加软装显示出美感。开放式衣帽间在侧,满足衣物的收纳,与衣帽间相连的内卫,简洁明亮。



简约的书房,一张长桌,可以供两个人一起工作学习。书桌旁的吊柜,可以放一些藏书,满足业主的储物需求。

阳台洗衣机旁的柜子,方便储放物品,又能闲暇时光摆弄花花草草。

13095516878





