建筑融合传统书院文化的形式及特点,以现代的设计手法,重现新语境下的东方神韵。

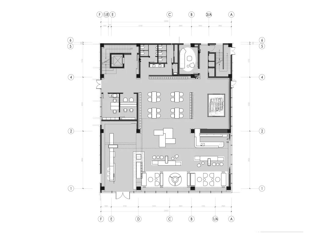
有趣的城市读书潮,与时代的刚好遇见。阅读购书、主题展览、讲座培训、社交休闲等多功能于一体的公共文化空间,而书只是构建生活方式的其中一个环节。


围绕着书院打造多业态的综合性体验馆,强调年轻化、体验感、参与感、互动感。

通过现代稳重/简约明快的建筑手法表达出具有国际视野的内建筑形态。

通过艺术装置丰富互动空间,创造轻松惬意的艺术氛围。

通过融合非传统类型的室内功能,打破传统售楼部的固有形态。



辰豪装饰:民宿 · 别墅 · 售楼部-全案整装引导者
13095516878
建筑融合传统书院文化的形式及特点,以现代的设计手法,重现新语境下的东方神韵。

有趣的城市读书潮,与时代的刚好遇见。阅读购书、主题展览、讲座培训、社交休闲等多功能于一体的公共文化空间,而书只是构建生活方式的其中一个环节。


围绕着书院打造多业态的综合性体验馆,强调年轻化、体验感、参与感、互动感。

通过现代稳重/简约明快的建筑手法表达出具有国际视野的内建筑形态。

通过艺术装置丰富互动空间,创造轻松惬意的艺术氛围。

通过融合非传统类型的室内功能,打破传统售楼部的固有形态。


