民宿案例--巢湖厵村精品民宿度假酒店CG03、04办公楼装修案例
项目类型:民宿
项目设计:设计A组
项目面积:1980㎡
所在地:巢湖市黄麓镇
设计说明:
巢湖厵村度假酒店是国家5A级旅游景区、国家生态旅游示范区规划、建设和运营,将其打造成一个集“自然风景观光区、精品民宿体验区、休闲娱乐***区、健康养生康养区、企业发展拓展区、亲子游玩研学区、生态农业科教区”七大旅游产业于一体综合性一站式旅游目的地。
该案例为度假酒店内部办公室装修。该案例意图打造一个宁静素雅的办公空间,没有张扬的艳丽也没有色彩的繁冗,有的只是处处透露的清新和淡雅,主要用到的材料有木饰面、艺术漆、装饰铁艺、大理石及装饰竹席等,充分使用东方的元素打造出一个沉稳内敛的氛围,装饰竹席和铁艺造型等装饰品将传统元素和现代元素相结合,以现代审美打造富有传统意味的空间。

东立面外景效果图

西立面外景效果图

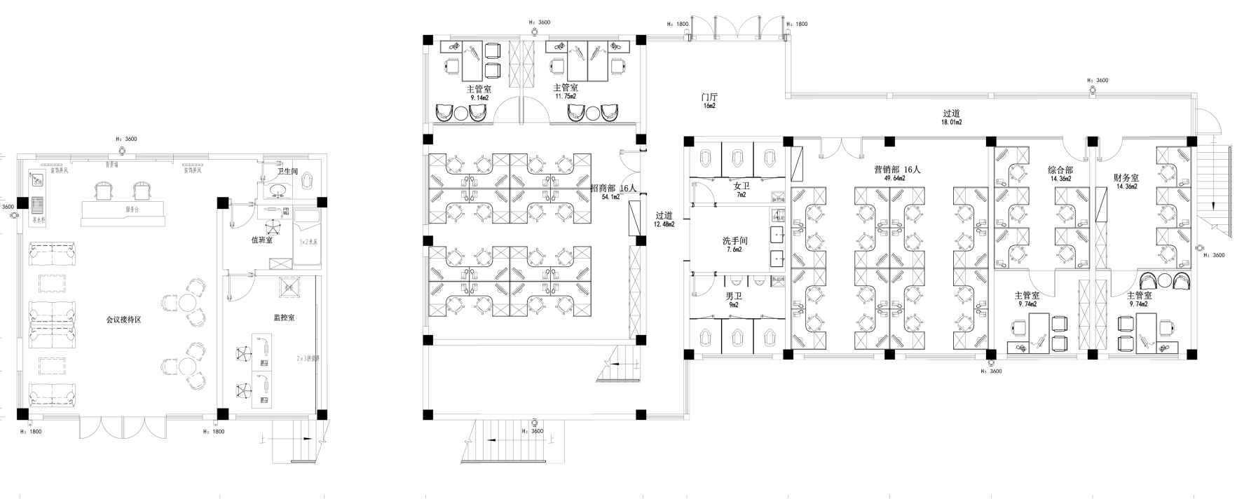
一层平面图

一层员工办公室效果图

一层员工办公室效果图

一层员工办公室实景图
员工办公区:双层石膏板吊顶,内嵌线条灯,没有多余复杂的造型,经理办公室采用双玻百叶隔断,不仅起到一定的隔离和遮挡作用,保护隐私,同时不影响采光和空间的透明感。整个设计上采用统一规范、简洁少装饰的手法,体现亲近、和谐的现代感。空间布局有对称的层次感,保障功能健全,突出现代办公环境讲究效率的特征。

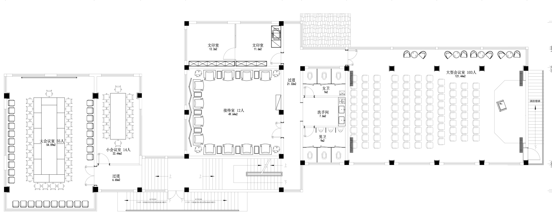
二层平面图

二层接待室效果图

二层接待室实景图
接待室:双层石膏吊顶暗藏灯带,采用实木线条走边,内嵌实木线条造型点缀,墙面皮质硬包装点。简单的空间格局,融合家庭式设计理念,借助柔软的沙发座椅,柔和的灯带……,构造舒适轻松的空间氛围,无形中拉近与来访者的距离,促进商业洽谈与合作的顺利推进。

二层会议室效果图

二层大会议室实景图
会议室:石膏板吊顶走边,暗藏LED淡黄色灯带,顶面实木线条做造型,整铺装饰竹席,墙面米色真石漆。整个色调简洁、明快。合适的色彩和装饰元素可以增强会议室的氛围和舒适性。

二层多功能厅效果图

二层多功能厅实景图
多功能厅:青钢龙骨双层石膏板边吊,原坡面屋顶保留,只做铁艺造型点缀。两边承重柱加实木木饰面装饰点缀,以弱化柱子突兀四角。墙面采用淡黄色艺术漆,为整个硬朗的空间添加一丝温馨。地面使用随州白麻整铺,同色35公分踢脚线,在设计风格中起到了统一装饰的作用。
13095516878










