原木风民宿装饰案例
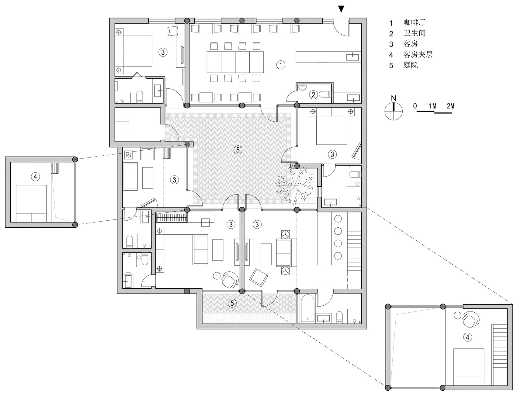
本案坚持“承袭人文之间,创新意想之余”的理念,深研东方文蕴的美学,以艺术为点缀,在爱慕客栈的设计中,发掘新的美学价值形态的美好,将返璞归真的人文之美融合旅行的仪式感,营造一个慢游忘忧的世外桃源旅居空间,予人极致东方的归属感和认同感,舒惬而自由。



置身原木风的世界,仿佛能感受到和煦温暖,温柔自在;原木风,永不过时!





辰豪装饰:民宿 · 别墅 · 售楼部-全案整装引导者
13095516878
原木风民宿装饰案例
本案坚持“承袭人文之间,创新意想之余”的理念,深研东方文蕴的美学,以艺术为点缀,在爱慕客栈的设计中,发掘新的美学价值形态的美好,将返璞归真的人文之美融合旅行的仪式感,营造一个慢游忘忧的世外桃源旅居空间,予人极致东方的归属感和认同感,舒惬而自由。



置身原木风的世界,仿佛能感受到和煦温暖,温柔自在;原木风,永不过时!




